Rooftop à Oullins

30 boulevard Emile Zola, 69600 OULLINS

  • chambres Indisponible
  • logement Logement de 170m²
  • Métro B / Bus 11 / Bus 12 / Bus 14

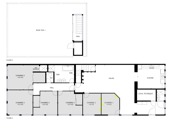
Ce bel appartement possède une surface de 170m2. Il se compose de 6 chambres, d'un grand séjour et d'une cuisine suréquipée et moderne afin d'accueillir ses nouveaux colivers dans les meilleures conditions possibles. Un rooftop de 60m² permet aux colivers de passer de bons moments chaleureux sous le soleil, ou à l'ombre sous la pergola.

Plan des surfaces

Equipements Appartement

  • Vaiselle Vaiselle
  • Lave-vaisselle Lave-vaisselle
  • Lave-linge Lave-linge
  • Télévision Télévision
  • Lit double Lit double
  • Bureau Bureau
  • Aspirateur Aspirateur
  • Fer à repasser Fer à repasser
  • Sèche cheveux Sèche cheveux
  • Presse agrumes Presse agrumes
  • Grille Pain Grille Pain
  • Cookeo Multicuiseur Cookeo Multicuiseur
  • Gaufrier Gaufrier
  • Diffuseur Huiles Essentielles Diffuseur Huiles Essentielles
  • Déshumidificateur Déshumidificateur
  • Cafetière Cafetière
  • Bouilloire Bouilloire
  • Sodastream Sodastream
  • Set de jeux Set de jeux
  • Ensemble balais et seau Ensemble balais et seau
Voir tous les équipements Réduire les équipements

Services compris dans la location

Les draps et serviettes sont fournis à votre arrivée.

Visite virtuelle

Toutes les chambres

Retrouvez les chambres que nous proposons

Chambre 1

Chambre se composant d'un lit double avec draps et oreillers, d’un bureau avec chaise, placard penderie avec serrure privative

Equipements Chambre

  • Lit double Lit double
  • Bureau Bureau
  • Rangements Rangements
  • Literie et accessoires Literie et accessoires
  • Mobilier Mobilier

455€ / mois*

Charges +95€

Frais ménage +25€

Inclus dans les charges

eau, électricité, gaz, internet, assurance habitation, coach sportif, pilate, yoga

Liste d’attente Chat Whatsapp

Chambre 2

Chambre se composant d'un lit double avec draps et oreillers, d’un bureau avec chaise, placard penderie avec serrure privative

Equipements Chambre

  • Lit double Lit double
  • Bureau Bureau
  • Rangements Rangements
  • Literie et accessoires Literie et accessoires
  • Mobilier Mobilier

455€ / mois*

Charges +95€

Frais ménage +25€

Inclus dans les charges

eau, électricité, gaz, internet, assurance habitation, coach sportif, pilate, yoga

Liste d’attente Chat Whatsapp

Chambre 3

Chambre se composant d'un lit double avec draps et oreillers, d’un bureau avec chaise, placard penderie avec serrure privative

Equipements Chambre

  • Lit double Lit double
  • Bureau Bureau
  • Rangements Rangements
  • Literie et accessoires Literie et accessoires
  • Mobilier Mobilier

505€ / mois*

Charges +95€

Frais ménage +25€

Inclus dans les charges

eau, électricité, gaz, internet, assurance habitation, coach sportif, pilate, yoga

Liste d’attente Chat Whatsapp

Chambre 4

Chambre se composant d'un lit double avec draps et oreillers, d’un bureau avec chaise, placard penderie avec serrure privative

Equipements Chambre

  • Lit double Lit double
  • Bureau Bureau
  • Rangements Rangements
  • Literie et accessoires Literie et accessoires
  • Mobilier Mobilier

505€ / mois*

Charges +95€

Frais ménage +25€

Inclus dans les charges

eau, électricité, gaz, internet, assurance habitation, coach sportif, pilate, yoga

Liste d’attente Chat Whatsapp

Chambre 5

Chambre se composant d'un lit double avec draps et oreillers, d’un bureau avec chaise, placard penderie avec serrure privative

Equipements Chambre

  • Lit double Lit double
  • Bureau Bureau
  • Rangements Rangements
  • Literie et accessoires Literie et accessoires
  • Mobilier Mobilier

505€ / mois*

Charges +95€

Frais ménage +25€

Inclus dans les charges

eau, électricité, gaz, internet, assurance habitation, coach sportif, pilate, yoga

Liste d’attente Chat Whatsapp

Chambre 6

Chambre se composant d'un lit double avec draps et oreillers, d’un bureau avec chaise, placard penderie avec serrure privative

Equipements Chambre

  • Salle de bain privée
  • Lit double Lit double
  • Bureau Bureau
  • Rangements Rangements
  • Literie et accessoires Literie et accessoires
  • Mobilier Mobilier

530€ / mois*

Charges +95€

Frais ménage +25€

Inclus dans les charges

eau, électricité, gaz, internet, assurance habitation, coach sportif, pilate, yoga

Liste d’attente Chat Whatsapp

Emplacement

30 boulevard Emile Zola, 69600 OULLINS

Grace au prolongement du métro B, Oullins est devenu l'extension de Lyon.
Aux allures de petit village, vous trouverez de nombreux commerces, bars et restaurants. Le quartier est cozy, calme et relaxant. L'Yzeron, un petit canal longeant la zone, apporte son lot de balades et répond aux besoins d'air frais et de promenades des colivers. Des commerces divers et variés ont élu domicile à proximité.

FAQ Foire aux questions

Lire la FAQ